The Hollow — Complete Plan Package

$4,800.00

The Hollow was designed to balance simplicity and character—streamlined enough to build efficiently, but with enough warmth, proportion, and detail to feel considered from the start.

It’s based on a home I designed and built for my own family, then refined through real daily use into a builder-ready plan set that feels calm, grounded, and distinctly lived in.

Designed for how homes are actually built and lived in—not just how they look on paper.

Designed for real use:

  • Clear, simple rooflines that build cleanly

  • Efficient, highly livable layout

  • Mudroom and storage where it actually matters

  • Works for primary homes, second homes, or retirement

  • Optimized for New England and cold-weather climates

What’s included:

  • Complete, builder-ready plan set (PDF)

  • Dimensioned floor plans, exterior elevations, sections, and key construction notes

  • Exterior render package

  • “Before You Build” quick-start guide

  • License + use terms

Designed as a flexible starting point that can be adapted to your site and local requirements. Most projects will require local engineering and minor adjustments based on site conditions.

Plans are formatted for 24” × 36” printing and designed to work seamlessly with your builder and local engineer.

Includes a simple “Before You Build” guide to walk you through next steps after purchase.

Finish Package (Optional Add-On)

For a fully resolved material direction, add a curated finish package designed to simplify selections and create a cohesive, timeless result.

Modern Heritage — Complete Finish Package

Instant download available immediately after purchase.

Purchase includes a single-build license. Local engineering, site review, and code compliance are required prior to construction. Due to the digital nature of the product, all sales are final.

The Hollow was designed to balance simplicity and character—streamlined enough to build efficiently, but with enough warmth, proportion, and detail to feel considered from the start.

It’s based on a home I designed and built for my own family, then refined through real daily use into a builder-ready plan set that feels calm, grounded, and distinctly lived in.

Designed for how homes are actually built and lived in—not just how they look on paper.

Designed for real use:

  • Clear, simple rooflines that build cleanly

  • Efficient, highly livable layout

  • Mudroom and storage where it actually matters

  • Works for primary homes, second homes, or retirement

  • Optimized for New England and cold-weather climates

What’s included:

  • Complete, builder-ready plan set (PDF)

  • Dimensioned floor plans, exterior elevations, sections, and key construction notes

  • Exterior render package

  • “Before You Build” quick-start guide

  • License + use terms

Designed as a flexible starting point that can be adapted to your site and local requirements. Most projects will require local engineering and minor adjustments based on site conditions.

Plans are formatted for 24” × 36” printing and designed to work seamlessly with your builder and local engineer.

Includes a simple “Before You Build” guide to walk you through next steps after purchase.

Finish Package (Optional Add-On)

For a fully resolved material direction, add a curated finish package designed to simplify selections and create a cohesive, timeless result.

Modern Heritage — Complete Finish Package

Instant download available immediately after purchase.

Purchase includes a single-build license. Local engineering, site review, and code compliance are required prior to construction. Due to the digital nature of the product, all sales are final.

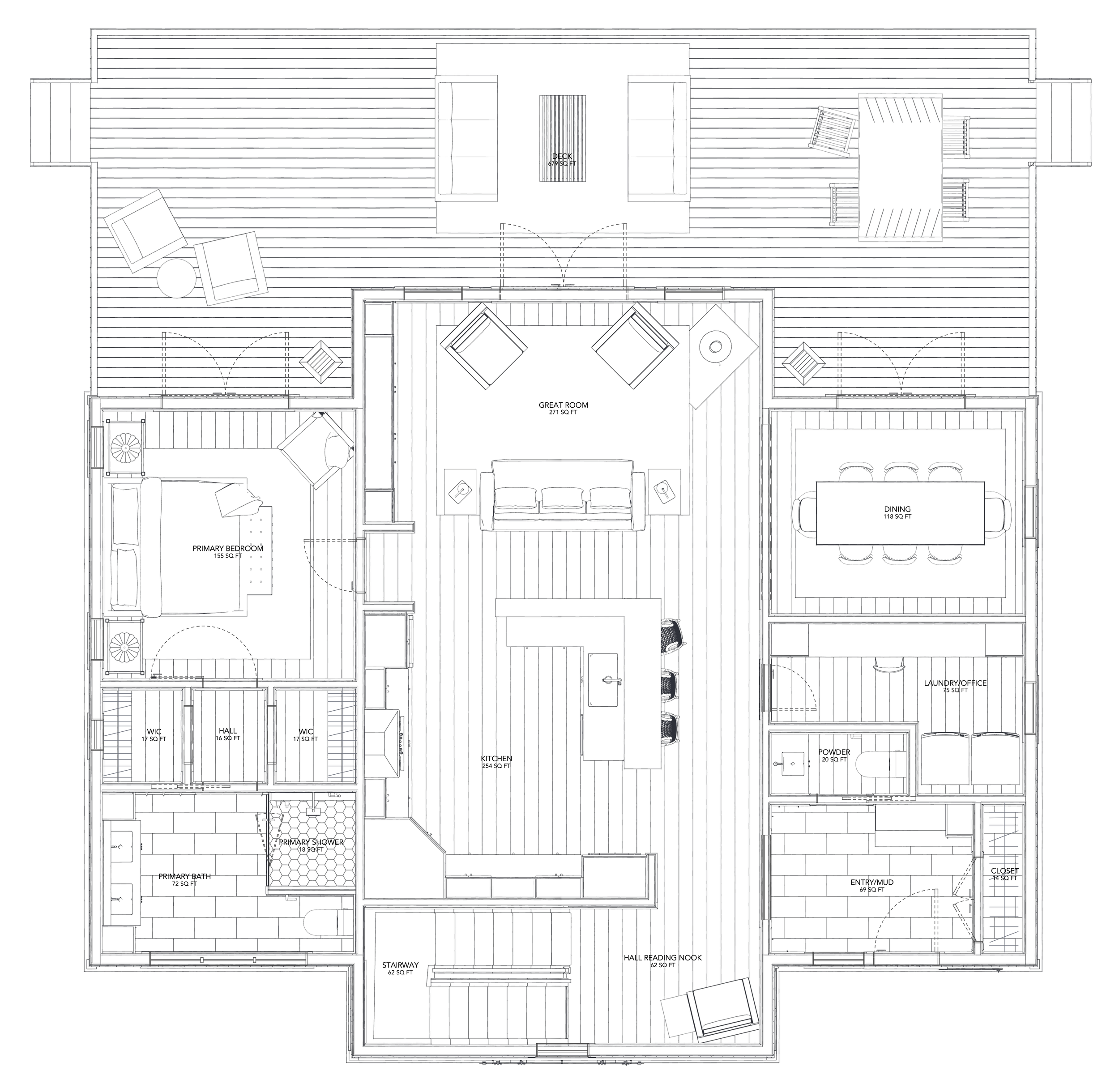
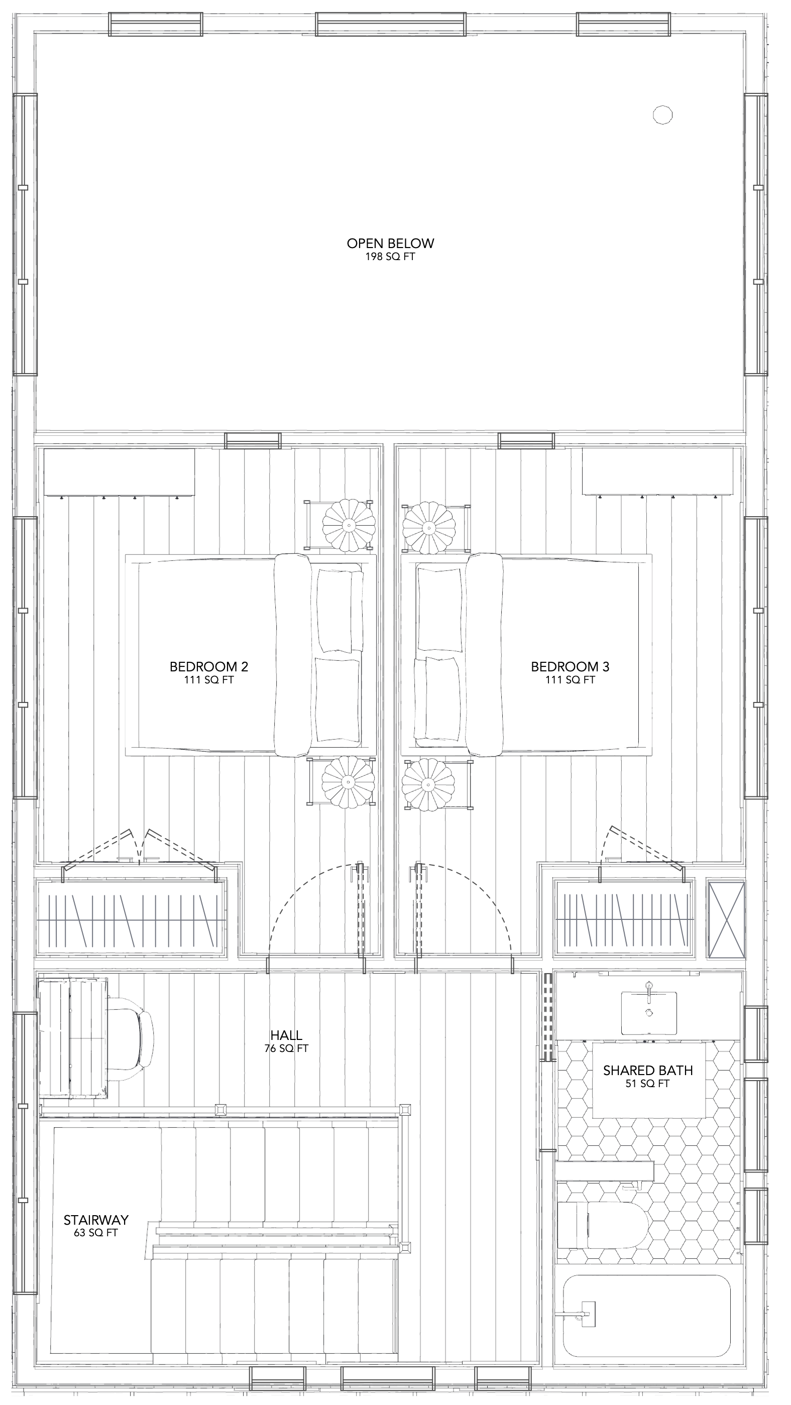
The Hollow — Floor Plan Features

  • Primary suite on main floor

  • Vaulted second floor with open loft

  • Open kitchen, living, and dining areas designed for gathering

  • Mudroom with built-in storage, hooks, and everyday functionality

  • Powder room conveniently located off the main entry

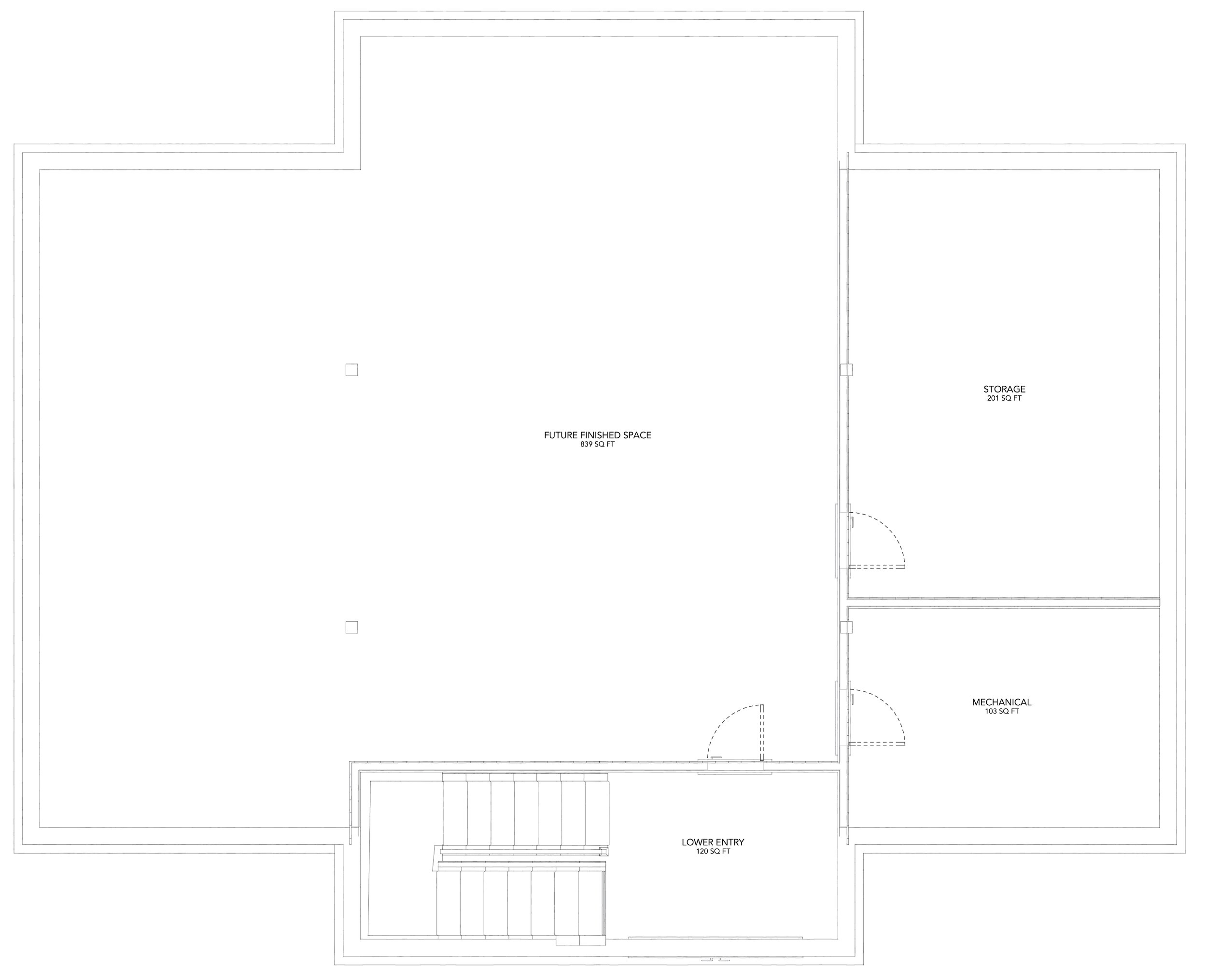
  • Unfinished basement for mechanicals and future expansion

  • Large deck for three-season living and entertaining

  • Designed for typical street-side entry with rear-facing views

  • Efficient, highly livable layout with minimal wasted space

All SD Plans are designed with cold-weather climates in mind, including snow load considerations, efficient layouts, and practical entry sequences for everyday use.

Well-suited for lake and mountain environments where durability, simplicity, and long-term performance matter.

Before You Build

Each plan includes a simple “Before You Build” guide to help you move from purchase to construction with clarity.

It outlines what to expect next—working with your builder, engaging a local engineer, permitting considerations, and how to approach site-specific adjustments.

SD Plans are designed to make the process straightforward from day one.

The Hollow — Design Details

PLAN #: The Hollow
STYLE: Modern New England
DIMENSIONS: 44’-10” x 37’ + Deck
SQUARE FT: 1769 SQ. FT.

  • Main: 1333 sqft

  • Upper: 436 sqft

  • Basement: Unfinished

BEDROOMS: 3
BATHROOMS: 2.5
GARAGE: None
FOUNDATION: Unfinished basement

Modifications & Customization

This plan is designed as a strong starting point and can be adapted to suit your specific needs or site conditions.

Modification requests may be submitted for review. Each request is evaluated on a case-by-case basis depending on scope, timing, and availability.

If accepted, a proposal outlining scope, timeline, and fee will be provided before any work begins.

Modification requests are prioritized for plan purchasers. If you have a specific question before purchasing, feel free to reach out and I can help guide whether the plan is a good fit.

For inquiries, please submit a request using the form below.

Frequently Asked Questions

  • Yes. Most projects will require a local engineer to review and adapt the plans based on site conditions, structural requirements, and local codes.

  • Yes. The plan is designed as a flexible starting point and can be adjusted. Modification requests can be submitted for review, or your builder or local designer can make changes as needed.

  • Your purchase includes a complete, builder-ready PDF plan set with dimensioned floor plans, exterior elevations, sections, and key construction notes, along with a render package, “Before You Build” guide, and license documents.

  • All files are delivered digitally as high-resolution PDFs, formatted for typical 24” × 36” printing.

  • Files are available for instant download immediately after purchase via the confirmation page.

  • The plan is designed to work across a range of site conditions, but most builds will require adjustments for setbacks, orientation, grading, and local regulations.

  • Yes. The plans are created to be clear and builder-friendly, and are suitable for pricing, permitting, and construction with local engineering.

  • The plans include basic structural intent and key construction notes to support builder pricing and coordination. Additional structural engineering, site-specific planning, and MEP (mechanical, electrical, plumbing) design will typically need to be completed by local professionals based on your site, region, and code requirements.

  • Construction costs vary widely based on location, builder, and level of finish. For accurate pricing, we recommend sharing the plans with a local builder familiar with your area.

  • No. Each purchase includes a limited-use license for a single build. Additional builds require an additional license.

  • Due to the digital nature of the product, all sales are final.

  • Not necessarily, but it’s helpful. Many buyers purchase first, then review the plans with a builder to move forward.

  • A limited number of full custom projects are accepted each year through Stockman Design. You’re welcome to inquire for availability.

  • Multi-use licenses may be available. Please reach out to discuss your project.

  • If you have a specific question about the plan or need help determining if it’s a good fit, feel free to reach out.